案例|恒盛鼎城華公館——森系的甜美,屬于兩個人的溫馨小窩
2019-01-02
恒盛鼎城華公館案例
- 現代簡約 -
小區名稱:恒盛鼎城華公館
裝修類型:新房裝修
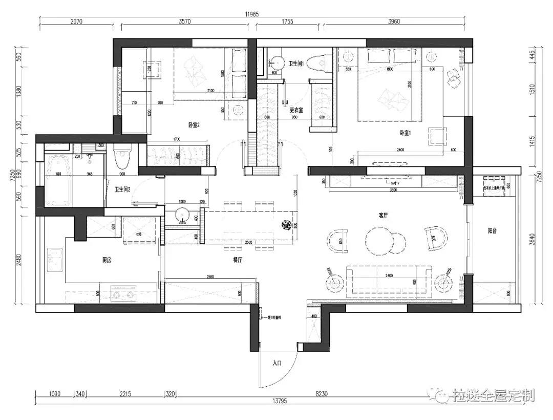
戶型面積:85㎡ (兩室一廳)
(▲戶型圖)
(長按圖片,識別二維碼,查看全景設計)
王先生(化名)與太太剛剛結婚不久。幾周前,他們搬進了現在這套婚房。雖然說戶型面積不大,但他們一點也不將就。
作為他們即將起航,駛向全新生活旅程的“旗艦”,這里的每個細節都經過了精心的設計。
下面就來詳細看看這對新人是怎么樣設計自己的新房吧?
玄關 Porch
(▲效果圖)
(▲實拍圖)
因為是小戶型,所以對空間的利用格外重要。玄關柜雖然造型比較簡單,但對空間的利用率卻很高。
上下兩個柜體分別可以當做儲物柜和鞋柜,中間的空檔可以隨手放置一些小物件,十分便捷。
餐廳 Balcony
(▲效果圖)
(▲實拍圖)
這是一款儲物柜,旦看上去十分像護墻板,得益于它沒有安裝把手,而是采用了自彈器作為開關。
加上整塊“挪威木紋”門板上頂天花板,下接木地板,一氣呵成,看上去十分完整平齊,確實很像護墻板。
再加上王先生十分喜歡“挪威木紋”的樣式,這不,在餐桌上方和沙發背后都用“挪威木紋”做了護墻板。
客廳 Parlour
(▲效果圖)
(▲實拍圖)
電視柜設計可也是考慮到王先生的生活習慣,一些書籍、游戲機、擺件都需要擺放的空間,
而陶瓷白的門板也是平衡了整體的色調,不至于顯得暗沉晦澀。
過道 Aisle
(▲效果圖)
(▲實拍圖)
因為之前對戶型布局進行了一些改動,所以餐廳與廚房相連的地方有一塊多余的空間,這時候輪到拉迷定制家具出馬,
做了一個與玄關柜類似的簡易儲物柜。上下兩個柜體放置一些雜物,不讓空間有絲毫的浪費。
(▲效果圖)
(▲實拍圖)
廚房中也是做了一個容量十分可觀的儲物柜,放置一些不用放在冰箱,可以常溫存放的物品。

(▲效果圖)
(▲實拍圖)
書房與主臥本來是相對的,中間夾著一個洗浴間。但是經過王先生的改造,
將中間這個通向洗浴間的小過道改造成了一個小巧的衣帽間,緊挨浴室,以后換洗衣服就方便多了。
(▲效果圖)


(▲實拍圖)
因為做了衣帽間,主臥不需要再放置衣柜,所以這里的空間就會顯得比較大。
放置一個小書桌,臨窗再做一個飄窗柜......看看窗外的風景,聊聊生活的趣事,二人世界就是這般悠閑自在。
書房 Study
(▲效果圖)
(▲實拍圖)
在次臥,也設計了一個書桌+飄窗柜。使得這間屋子近兩年可以作為書房使用。等到王先生有了孩子,這里又可以變為孩子的臥室,
平時寫作業,父母還可以在一旁的飄窗柜上陪著孩子。這樣的設計,讓這間屋子至少十年內不用再做改動。
THE END
王先生家的裝修風格總體簡潔明快。無把手的設計將板材紋理最大化、完整地展示出來;“陶瓷白”+“挪威木紋”,一明一暗,相得益彰。
那么王先生對拉迷又有著什么樣的評價呢?一起來看看吧!
(▲拉迷業主采訪視頻)
想要知道更多關于“產品”或者“案例”的介紹,還可以點擊下面文章進行了解。
往期精選
